«Монолит ЖБИ78»
Санкт-Петербург, Московское ш., 201, лит.З, посёлок Шушары
пн-вс 9.00-20.00
Отдел продаж:
Электронная почта:
круглосуточно
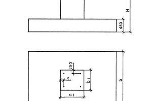
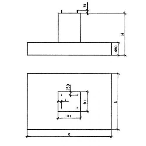
Фундамент ФМ-7 дорожных знаков
Железобетонный фундамент ФМ7 предназначен для установки металлических рамных опор дорожных знаков. Он производится из высококачественного бетона марки B15. Для обеспечения прочности фундамент усилен арматурной сеткой, выполненной из стали класса А-III и проволокой класса Вр-I. Для удобства монтажа предусмотрены специальные подъемные петли.
| Производитель: | Монолит ЖБИ78 |
| Ширина, мм | 1500 |
| Длина, мм | 2000 |
| Высота, мм | 1200 |
| Вес, т | 4.1 |
| ГОСТ/ТУ | 3.503.9-80 вып.2 |
| Маркировка | ФМ7 |
| Марка бетона | B15 |
| Объем, м3 | 1.67 |
| Морозостойкость | F100 |
Стоимость доставки
| Способ доставки | Макс. длина груза, м | Стоимость доставки по СПб и ЛО |
|---|---|---|
| Машина до 3,5 тн до 30 м3 | 6 | от 2 200 руб |
| Машина до 5 тн до 30 м3 | 6 | от 3 500 руб |
| Машина до 10 тн до 50 м3 | 8 | от 6 200 руб |
| Машина до 20 тн до 80 м3 | 8 | от 9 600 руб |
| Манипулятор до 5 тн | 5 | от 4 700 руб |
| Манипулятор до 10 тн | 10 | от 8 600 руб |
| Манипулятор до 20 тн | 14 | от 16 900 руб |
Фундамент ФМ-7 применяется для монтажа дорожных знаков, столбов и опор. Изготавливается из железобетона, что обеспечивает его исключительную прочность и долговечность. Эта конструкция обладает высокой устойчивостью к ветровым воздействиям, вибрационным нагрузкам от транспортных средств и другим внешним факторам. Данный фундамент пригоден для эксплуатации в районах с сейсмической активностью.
Для установки готовых железобетонных блоков фундамента ФМ-7 подготовьте основание из уплотнённого щебня и песка минимальной толщиной 300 мм. Основание должно располагаться таким образом, чтобы фундамент был углублён не менее чем на половину его высоты.
У нас вы можете купить железобетонный фундамент ФМ-7 без посредников — по цене от производителя.
Ассортимент жб изделий завода «Монолит» насчитывает более 10000 наименований, в продаже присутствует Фундамент ФМ-7 дорожных знаков с типовыми размерами мм. Регламентирующим нормативом для продукции этого вида является ГОСТ, в соответствии с которым изделие обладает массой в кг. Продукция всегда есть в наличии, цены указаны без учёта доставки. Актуальную стоимость Фундамент ФМ-7 дорожных знаков вы можете запросить у менеджера компании по телефону +7 (812) 309-71-78, отправив заявку с сайта или электронное письмо на адрес monolit@gbi78.ru.
Завод ЖБИ - Монолит 78
Завод по Монолит СВАИ78
- +7 (812) 309-71-78
- monolit@gbi78.ru
-
г. Санкт-Петербург, промзона Шушары, ул. Генерала-Хрулёва, д. 15
Завод ЖБИ - Монолит 78
Производство фундаментных блоков
- +7 (812) 309-71-78
- monolit@gbi78.ru
-
Ленинградская обл., г. Всеволожск, Промышленный проезд, д. 8
Завод ЖБИ - Монолит 78
Завод ЖБИ Монолит
- +7 (812) 309-71-78
- monolit@gbi78.ru
-
Санкт-Петербург, Московское ш., 201, лит.З, посёлок Шушары
Завод ЖБИ - Монолит 78
Производство лестничных железобетонных маршей
- +7 (812) 309-71-78
- monolit@gbi78.ru
-
г. Санкт-Петербург, промзона Парнас, Парнасная ул., д. 12
Завод ЖБИ - Монолит 78
Производство железобетонных плит перекрытия
- +7 (812) 309-71-78
- monolit@gbi78.ru
-
г. Санкт-Петербург, промзона Волхонское ш., д. 45 (территория "Металлострой")
Завод ЖБИ - Монолит 78
Производство железобетонных перемычек
- +7 (812) 309-71-78
- monolit@gbi78.ru
-
г. Санкт-Петербург, промзона Обухово, Заводской пр., д. 55
Завод ЖБИ - Монолит 78
Производство аэродромных железобетонных плит
- +7 (812) 309-71-78
- monolit@gbi78.ru
-
Петергофское шоссе, 71Д, Санкт-Петербург
Завод ЖБИ - Монолит 78
Производство железобетонных заборов
- +7 (812) 309-71-78
- monolit@gbi78.ru
-
Ленинградская область, Всеволожский район, Заневское городское поселение, деревня Заневка
Завод ЖБИ - Монолит 78
Производство железобетонных колец и колодцев
- +7 (812) 309-71-78
- monolit@gbi78.ru
-
Пискарёвский проспект, 125Шс7, Санкт-Петербург
Заявка с сайта
или по телефону
Консультация
с менеджером
Согласование
сроков и стоимости
Поставка ЖБИ
Оплата
Опытные квалифицированные сотрудники
Продукция соответствует ГОСТ
Ассортимент из
более 10.000 изделий
Полный пакет документов
Быстрая доставка
по Санкт-Петербургу и Ленинградской области
Нет времени искать нужный товар?
Получите
консультацию по телефону!

Переводом на расчётный счёт в
банке
Наличными в офисе
Картой Visa или MasterCard