«Монолит ЖБИ78»
Санкт-Петербург, Московское ш., 201, лит.З, посёлок Шушары
пн-вс 9.00-20.00
Отдел продаж:
Электронная почта:
круглосуточно
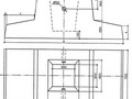
Железобетонный фундамент Ф-1 дорожных знаков
В качестве опоры для стоек временных или постоянных знаков в строительстве автомагистралей и трасс используется фундамент Ф1. Он представляет собой железобетонное изделие, имеющее форму усечённой пирамиды на ступенчатой основе.
Наш фундамент дорожного знака подходит для дорог разного назначения — как общегородских, так и технологических или промышленных. Верхняя часть изделия имеет отверстие для установки стойки с дорожным знаком. Блок фундамента Ф-1 обеспечивает надёжную поддержку дорожных знаков, гарантируя долговечность и устойчивость конструкции.| Производитель: | Монолит ЖБИ78 |
| Ширина, мм | 700 |
| Длина, мм | 1100 |
| Высота, мм | 700 |
| Вес, т | 0.85 |
| ГОСТ/ТУ | 3.503.9-80 вып.1 |
| Маркировка | Ф1 |
| Марка бетона | B15 |
| Объем, м3 | 0.35 |
| Морозостойкость | F100 |
Стоимость доставки
| Способ доставки | Макс. длина груза, м | Стоимость доставки по СПб и ЛО |
|---|---|---|
| Машина до 3,5 тн до 30 м3 | 6 | от 2 200 руб |
| Машина до 5 тн до 30 м3 | 6 | от 3 500 руб |
| Машина до 10 тн до 50 м3 | 8 | от 6 200 руб |
| Машина до 20 тн до 80 м3 | 8 | от 9 600 руб |
| Манипулятор до 5 тн | 5 | от 4 700 руб |
| Манипулятор до 10 тн | 10 | от 8 600 руб |
| Манипулятор до 20 тн | 14 | от 16 900 руб |
Фундамент Ф-1: надежная основа для дорожных знаков
Фундамент Ф-1 — это прочное железобетонное изделие, предназначенное для установки дорожных знаков, указателей, светофоров и других конструкций. Он обеспечивает устойчивость и долговечность, что особенно важно для объектов, подверженных ветровым и динамическим нагрузкам. Этот тип фундамента разработан в соответствии с требованиями ГОСТ и СНиП, что гарантирует его эксплуатационную надежность.
Область применения ЖБ фундамента
Фундамент Ф-1 широко применяется в следующих сферах:
-
Установка дорожных знаков и указателей
-
Монтаж светофоров и информационных щитов
-
Фиксация барьерных ограждений
-
Основание для опор освещения
-
Использование в благоустройстве городских и пригородных территорий
Сопутствующие товары
При установке фундамента могут потребоваться:
-
Лотки кабельные — для защиты проводки к светофорам и знакам с подсветкой.
-
Дренажные асбестоцементные трубы — для отвода воды от основания фундамента.
-
Опорные плиты — для увеличения площади опоры на слабых грунтах.
Где купить фундамент Ф-1?
Приобрести железобетонный фундамент Ф-1 можно у нас, проверенного производителя ЖБИ. Мы предлагаем продукцию, соответствующую ГОСТ, с доставкой и консультацией по выбору.
Закажите фундамент Ф-1 с гарантией качества
У нас вы можете купить железобетонный фундамент Ф1 для ограждения участков, где ведутся дорожные работы, а также парковочных территорий и стоянок. Без посредников — по цене от производителя.
Ассортимент жб изделий завода «Монолит» насчитывает более 10000 наименований, в продаже присутствует Железобетонный фундамент Ф-1 дорожных знаков с типовыми размерами мм. Регламентирующим нормативом для продукции этого вида является ГОСТ, в соответствии с которым изделие обладает массой в кг. Продукция всегда есть в наличии, цены указаны без учёта доставки. Актуальную стоимость Железобетонный фундамент Ф-1 дорожных знаков вы можете запросить у менеджера компании по телефону +7 (812) 309-71-78, отправив заявку с сайта или электронное письмо на адрес monolit@gbi78.ru.
Завод ЖБИ - Монолит 78
Завод по Монолит СВАИ78
- +7 (812) 309-71-78
- monolit@gbi78.ru
-
г. Санкт-Петербург, промзона Шушары, ул. Генерала-Хрулёва, д. 15
Завод ЖБИ - Монолит 78
Производство фундаментных блоков
- +7 (812) 309-71-78
- monolit@gbi78.ru
-
Ленинградская обл., г. Всеволожск, Промышленный проезд, д. 8
Завод ЖБИ - Монолит 78
Завод ЖБИ Монолит
- +7 (812) 309-71-78
- monolit@gbi78.ru
-
Санкт-Петербург, Московское ш., 201, лит.З, посёлок Шушары
Завод ЖБИ - Монолит 78
Производство лестничных железобетонных маршей
- +7 (812) 309-71-78
- monolit@gbi78.ru
-
г. Санкт-Петербург, промзона Парнас, Парнасная ул., д. 12
Завод ЖБИ - Монолит 78
Производство железобетонных плит перекрытия
- +7 (812) 309-71-78
- monolit@gbi78.ru
-
г. Санкт-Петербург, промзона Волхонское ш., д. 45 (территория "Металлострой")
Завод ЖБИ - Монолит 78
Производство железобетонных перемычек
- +7 (812) 309-71-78
- monolit@gbi78.ru
-
г. Санкт-Петербург, промзона Обухово, Заводской пр., д. 55
Завод ЖБИ - Монолит 78
Производство аэродромных железобетонных плит
- +7 (812) 309-71-78
- monolit@gbi78.ru
-
Петергофское шоссе, 71Д, Санкт-Петербург
Завод ЖБИ - Монолит 78
Производство железобетонных заборов
- +7 (812) 309-71-78
- monolit@gbi78.ru
-
Ленинградская область, Всеволожский район, Заневское городское поселение, деревня Заневка
Завод ЖБИ - Монолит 78
Производство железобетонных колец и колодцев
- +7 (812) 309-71-78
- monolit@gbi78.ru
-
Пискарёвский проспект, 125Шс7, Санкт-Петербург
Заявка с сайта
или по телефону
Консультация
с менеджером
Согласование
сроков и стоимости
Поставка ЖБИ
Оплата
Опытные квалифицированные сотрудники
Продукция соответствует ГОСТ
Ассортимент из
более 10.000 изделий
Полный пакет документов
Быстрая доставка
по Санкт-Петербургу и Ленинградской области
Нет времени искать нужный товар?
Получите
консультацию по телефону!

Переводом на расчётный счёт в
банке
Наличными в офисе
Картой Visa или MasterCard